Ga naar inhoud

Te koop: woonhuis Vedergras 4 3994 NR Houten

Reinerie Garantiemakelaars IJsselstein
Neem contact met mij op

Verkocht

€ 525.000,- k.k.

Ben jij op zoek naar een perfect familiehuis met een prachtige tuin in een rustige buurt? Stop met zoeken! Dit bestaande rijtjeshuis in Houten is zeker de moeite waard om te bekijken. Het huis is gebouwd in 2002 en heeft een woonoppervlak van 96 vierkante meter.

Deze sfeervolle eensgezinswoning ligt in de geliefde wijk “Het Gras”. De woning heeft een heerlijk ruime achtertuin op het zuiden, uitgebouwde woonkamer met open haard en prachtig hoogwaardig afgewerkt!

WONEN & KOKEN
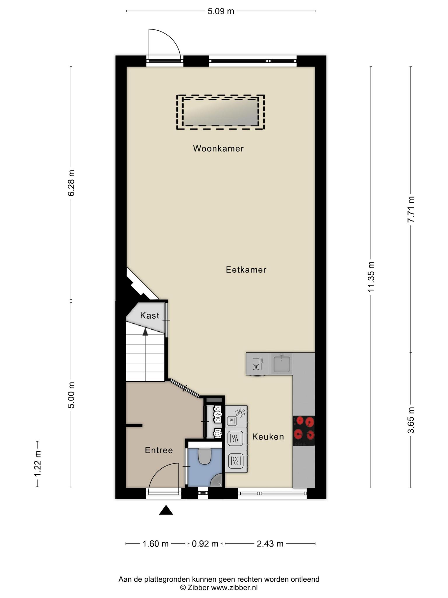
Via de voortuin kom je in de ruime entree, toilet met fonteintje en trapopgang.
De woonkamer heeft een grote aanbouw met lichtstraat, een mooie natuurstenen leistenen vloer met vloerverwarming en een gezellige openhaard.

Vanuit de woonkamer kom je in de fijne tuin op het zuiden met stenen berging en achterom. In de woonkamer is een praktische trapkast. De moderne keuken aan de voorkant van het huis geeft zicht op het gezellige hofje.
De luxe keuken is uitgevoerd in een L-opstelling met een schiereiland. Aan het schiereiland is het heerlijk ontbijten, borrelen. De keuken heeft alle luxe zoals een vaatwasser, inductiekookplaat, afzuigkap, magnetron, oven, koffiemachine, koelkast en vriezer.

SLAPEN & BADEN
Via de trap in de hal kom je op de eerste verdieping. De eerste verdieping is uitgerust met 3 ruime slaapkamers. De slaapkamers aan de achterzijde van de woning zijn voorzien van elektrisch rolluiken, deze zijn gedeeltelijk ingebouwd in het dakkapel. Op de eerste verdieping is een moderne badkamer uit 2021, welk voorzien is van inloopdouche, toilet, vloerverwarming en wasmeubel met spiegel. Via de vaste trap op de overloop kom je op de zolder met over de gehele breedte bergruimte met twee dakramen, hierdoor is de zolder een zeer fijne ruimte voor bijvoorbeeld een hobby ruimte, werkruimte of gewoon een praktische berging met wasmachine- en drogeraansluiting

BUITEN & OMGEVING
In de riante achtertuin, gelegen op het zuiden, kan je heerlijk genieten van de zon. De pluktuin is goed onderhouden en bevat bloemen, appels, peren, druiven en tuinkruiden en heeft een oppervlakte van 55 vierkante meter. Er is ook een nette voortuin, waardoor de totale buitenruimte op 72 vierkante meter komt. Er is genoeg zitplaats om in de zomer heerlijk te genieten van de op het zuiden gelegen tuin. Ook is er een stenen berging welk de mogelijkheid bied om bijvoorbeeld je fietsen en andere spullen in op te bergen. Verder is er een achterom wat het makkelijk maakt om direct bij de berging te zijn.

De kindvriendelijke wijk “Het Gras” is gebouwd in de jaren ’30 stijl met brede straten en veel groen. Je woont er lekker rustig en toch vlakbij alle voorzieningen: Je loopt zo naar recreatiegebied De Rietplas en winkelcentrum Castellum met het NS-station (met de trein sta je binnen 10 minuten in hartje Utrecht). Het is een leuke wijk voor kinderen door de verschillende speelveldjes. Ook de uitvalswegen A12 en A27 zijn vanuit de Vedergras 4 goed bereikbaar.
Een huis naar je hart? We laten het graag aan je zien!

Bijzonderheden:
-Het bouwjaar van de woning is 2002.
-Gebruiksoppervlakte wonen 96m2 (exclusief zolder van circa 8m2 ), inhoud 367m3, perceeloppervlakte 135m2
-Geheel geïsoleerd, energielabel A
-Badkamer verbouwd in 2021
-Aanwezigheid van 5 zonnepanelen
-Het huis is gasloos en voorzien van stadsverwarming, een open haard en vloerverwarming in de woonkamer en badkamer
-Begane grond en hoofdslaapkamer eerste verdieping voorzien van domotica systeem
-De achtertuin is gelegen op het zuiden
-Er is een achterom
-De locatie van de woning is op een rustige weg, in een woonwijk.
-Oplevering in overleg

TIP! Wist je ook dat je een bezichtiging kan plannen of vraag kan stellen via onze Whatsapp? Stuur ons gerust een appje op 030-6884455.

Wil je kijken wat je hypotheekmogelijkheden zijn of wil je graag hulp in de zoektocht naar jouw nieuwe [t]huis? Maak dan een afspraak met ons team!

De informatie op deze website en brochures is uitsluitend bedoeld als algemene informatie. Er kunnen geen rechten aan de informatie op deze website worden ontleend. Hoewel Reinerie Garantiemakelaars zorgvuldigheid in acht neemt bij het samenstellen en onderhouden van deze informatie en daarbij gebruik maakt van bronnen die betrouwbaar geacht worden, kunnen wij niet instaan voor de juistheid, volledigheid en actualiteit van de geboden informatie. Reinerie Garantiemakelaars garandeert niet dat de informatie foutloos is. Reinerie Garantiemakelaars wijst iedere aansprakelijkheid ten aanzien van de juistheid, volledigheid, actualiteit van de geboden informatie en het (ongestoord) gebruik van deze website uitdrukkelijk van de hand.

  • 96 m2
  • 135 m2
  • 3

Kenmerken Vedergras 4

Overdracht

Vraagprijs€ 525.000,- k.k.
AanvaardingIn overleg

Oppervlaktes en inhoud

Perceel oppervlakte135 m2
Woonoppervlakte96 m2
Inhoud367 m3

Bouw

SoortEengezinswoning
BouwvormBestaande bouw
Bouwjaar2002
Dak typeZadeldak
EnergielabelA

Indeling

Aantal verdiepingen3
Aantal kamers5
Aantal slaapkamers3
Aantal badkamers1

Maandlasten

Ligging Vedergras 4

Voorzieningen

Centraal gelegen informatie over de buurt

Aantal inwoners

In de gemeente

49.300

Leeftijd

in percentages van totaal

Huishoudsamenstelling

in percentages van totaal

21%

20% NL

19%

20% NL

60%

20% NL

Vergelijkbaar woningaanbod