Ga naar inhoud

Te koop: woonhuis Boedapestlaan 92 3404 VD IJsselstein

Reinerie Garantiemakelaars IJsselstein
Neem contact met mij op

Bezichtiging plannen

Beschikbaar

Bezichtiging plannen

€ 565.000,- k.k.

Op zoek naar een instapklare woning met een zonnige tuin en drie slaapkamers (voorheen vier)? Deze fraai afgewerkte eengezinswoning biedt het allemaal! Met een luxe keuken, moderne badkamer en vloerverwarming op de begane grond is het hier comfortabel wonen.

Welkom bij jouw nieuwe [t]huis aan de Boedapestlaan 92 in IJsselstein!

WONEN EN KOKEN
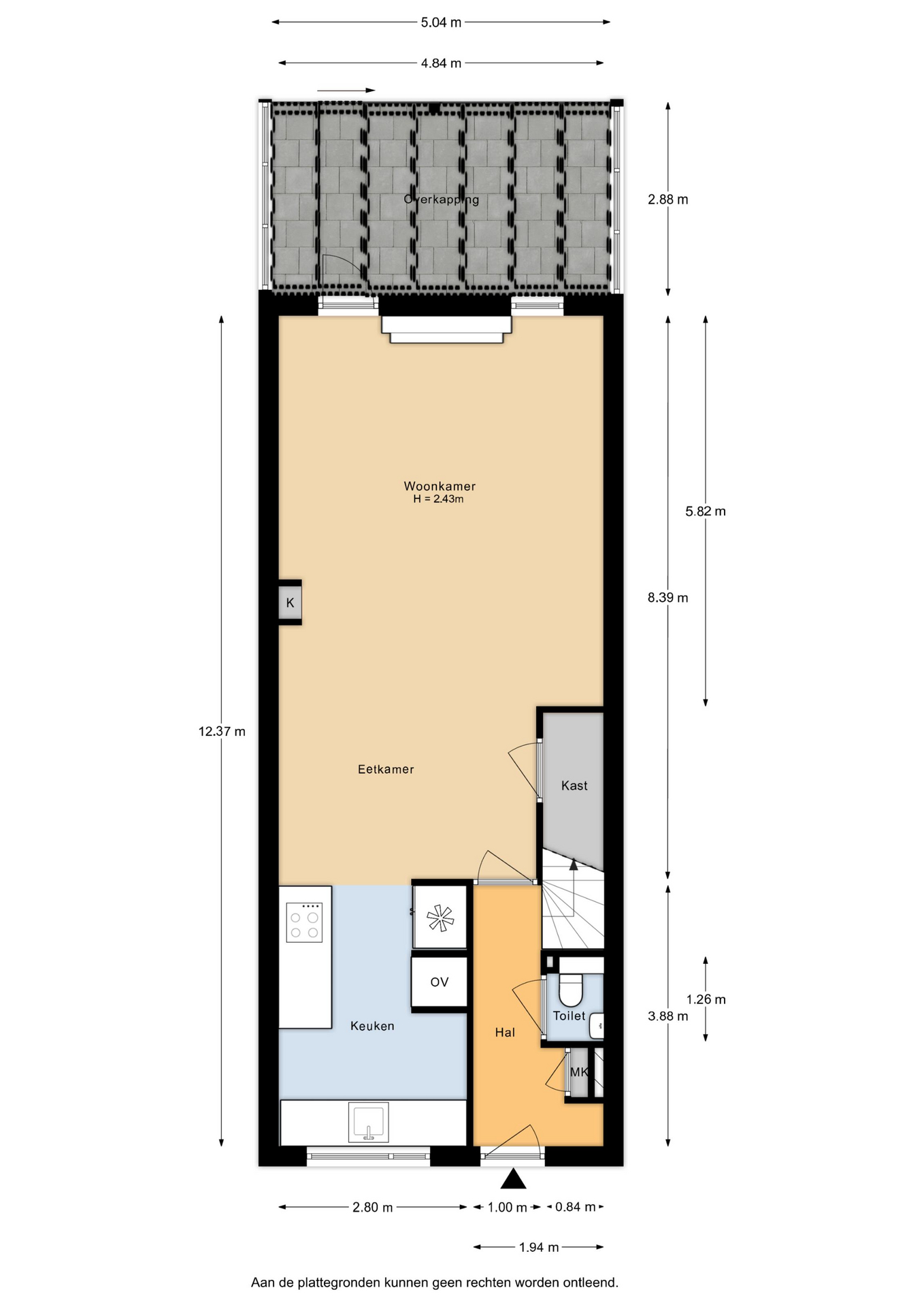
Via de entree met hal, meterkast, trapopgang en modern zwevend toilet met fontein bereik je de lichte, tuingerichte woonkamer. Dankzij de schuifpui geniet je van een prachtig zicht op – én directe toegang tot – de fraai aangelegde, zonnige tuin.
Aan de voorzijde bevindt zich de luxe keuken met o.a. een koel-/vriescombinatie, 4-pits inducrtiekookplaat, afzuigschouw, vaatwasser, Quooker en 1¼-wasbak. De gehele begane grond is voorzien van een stijlvolle plavuizenvloer met comfortabele vloerverwarming.
Aan de achterzijde vormt een stijlvolle serre een prachtig verlengstuk van de woonkamer, waardoor binnen en buiten naadloos in elkaar overgaan.

SLAPEN EN BADEN
Eerste verdieping: via de overloop bereik je een luxe slaapkamer (voorheen twee) en de luxe, gestuukt (beton ciré) en gedeeltelijk betegelde badkamer. Deze is uitgerust met een ligbad, aparte douchecabine, zwevend toilet, wastafel, designradiator én zelfs een ingebouwde tv bij het bad – een heerlijke plek om te ontspannen. Op deze verdieping bereik je via een opstap van enkele treden het zonnige dakterras.
Tweede verdieping: twee ruime slaapkamers, waarvan één met vaste kast en elektrische gordijnen. Verder is er een aparte ruimte met de C.V.-ketel, zonneboiler, mechanische ventilatie en aansluiting voor wasmachine en droger.

BUITENLEVEN EN OPBERGEN
De zonnige, fraai aangelegde tuin is voorzien van cortenstalen bloembakken, In-Lite LED-verlichting (volledig automatisch) en een tuintafel met keramisch blad in dezelfde stijl als de plantenbakken – dit geheel blijft bij de woning. Aan de voor- en achterzijde zijn buitenkranen aanwezig. De woning beschikt bovendien over een alarmsysteem (Verisure) met rookgordijn-beveiliging en drie camera’s – volledig werkend en inbegrepen bij de koop. Extra handig: in de schuur bevindt zich een tweede keuken met wastafel, kraan, boiler en koel-/vriescombinatie – ideaal voor buitenkoken of feesten in de tuin.

HET HART
Het Hart in het Zenderpark is op steenworp afstand van verschillende voorzieningen, denk hierbij aan een supermarkt, scholen en kinderdagverblijven. Daarnaast tref je aan de voorzijde voldoende parkeergelegenheid. Verder ligt op enkele minuten fietsafstand het historische stadscentrum van IJsselstein. In het centrum vind je een gevarieerd aanbod van winkels, restaurants, koffie- en wijnbars, theater en bioscoop. En ook de cultuur en uitgaansgelegenheden zijn in ruime mate vertegenwoordigd. Ook biedt de stad veel sport- en recreatiemogelijkheden. Voor wie zijn horizon wil verbreden, ligt het gezellige en bruisende Utrecht letterlijk om de hoek. Met de sneltram ben je in een korte tijd in zowel Nieuwegein, Utrecht CS en Sciencepark Utrecht. Ga je liever met de auto? De uitvalswegen A2 en A12 zijn makkelijk bereikbaar. En dat is nu precies de kracht van IJsselstein: je woont hier rustig – met een dorps karakter – en daarbij profiteer je dagelijks van alles wat wonen in het hart van Nederland te bieden heeft.

HOOOGTEPUNTEN & BIJZONDERHEDEN
^ Fraai aangelegde, zonnige tuin met cortenstalen bloembakken en automatische In-Lite LED-verlichting
^ Extra keuken in de schuur met boiler en koel-/vriescombinatie (blijft achter)
^ Luxe keuken met Novey Panorama-kookplaat en Quooker
^ Elektrische gordijnen in de slaapkamers
^ Badkamer met ligbad, aparte douche en ingebouwde tv
^ DRU gashaard in de woonkamer
^ Rolluiken (bedienbaar, uitbreidbaar met aansluiting op elk raam)
^ Compleet alarmsysteem (Verisure) met camera’s en rookgordijnbeveiliging, inbegrepen bij de koop
^ Elektrisch zonnescherm aan de achterzijde
^ C.V.-ketel en zonneboiler jaarlijks onderhouden
^ Het gehele interieur is eventueel over te nemen (bank, salontafel, dressoir, eettafel en buffetkast)
^ Energielabel A
^ Oplevering in overleg

PLANNEN, BEZICHTIGEN, WONEN & …GENIETEN
1. PLANNEN: We nodigen je graag uit om het geheel met eigen ogen te komen bekijken, plan direct een bezichtiging in! TIP: Wist je ook dat je een bezichtiging kan plannen of vraag kan stellen via onze Whatsapp? Stuur ons gerust een appje op 030-6884455.
2. BEZICHTIGEN: Onze enthousiaste makelaars leiden je graag rond door dit woonhuis.
3. WONEN: Wil je kijken wat je hypotheekmogelijkheden zijn om deze woning te kunnen kopen? Maak dan een afspraak met ons hypotheekteam en bekijk of wonen op deze plek mogelijk is!

De informatie op deze website en brochures is uitsluitend bedoeld als algemene informatie. Er kunnen geen rechten aan de informatie op deze website worden ontleend. Hoewel Reinerie Garantiemakelaars zorgvuldigheid in acht neemt bij het samenstellen en onderhouden van deze informatie en daarbij gebruik maakt van bronnen die betrouwbaar geacht worden, kunnen wij niet instaan voor de juistheid, volledigheid en actualiteit van de geboden informatie. Reinerie Garantiemakelaars garandeert niet dat de informatie foutloos is. Reinerie Garantiemakelaars wijst iedere aansprakelijkheid ten aanzien van de juistheid, volledigheid, actualiteit van de geboden informatie en het (ongestoord) gebruik van deze website uitdrukkelijk van de hand.

  • 126 m2
  • 129 m2
  • 3

Kenmerken Boedapestlaan 92

Overdracht

Vraagprijs€ 565.000,- k.k.
AanvaardingIn overleg

Oppervlaktes en inhoud

Perceel oppervlakte129 m2
Woonoppervlakte126 m2
Inhoud422 m3

Bouw

SoortEengezinswoning
BouwvormBestaande bouw
Bouwjaar1998
Dak typePlat dak
IsolatievormenVolledig geïsoleerd
EnergielabelA

Indeling

Aantal verdiepingen3
Aantal kamers4
Aantal slaapkamers3
Aantal badkamers1

Maandlasten

Ligging Boedapestlaan 92

Voorzieningen

Centraal gelegen informatie over de buurt

Aantal inwoners

In de gemeente

34.208

Leeftijd

in percentages van totaal

Huishoudsamenstelling

in percentages van totaal

33%

20% NL

32%

20% NL

35%

20% NL

Vergelijkbaar woningaanbod