Ga naar inhoud

Te koop: woonhuis Noorwegenlaan 27 3402 TA IJsselstein

Reinerie Garantiemakelaars IJsselstein
Neem contact met mij op

Verkocht

€ 445.000,- k.k.

Zoek jij een fijne, ruime tussenwoning met alle voorzieningen binnen handbereik? Stop maar met zoeken, want dit is jouw nieuwe [t]huis!

Welkom aan de Noorwegenlaan 27 in IJsselstein.

Wonen & Koken
Je komt binnen in een ruime hal met een toilet, meterkast en trap naar boven. Vanuit hier stap je de gezellige woonkamer binnen, waar het daglicht je tegemoet komt dankzij de brede ramen. De strakke vloer maakt het helemaal af. Aan de voorzijde vind je de open keuken – een echte eyecatcher! Modern, stijlvol en van alle gemakken voorzien. Dankzij de slimme indeling kun je hier koken én kletsen tegelijk.

Slapen & Baden
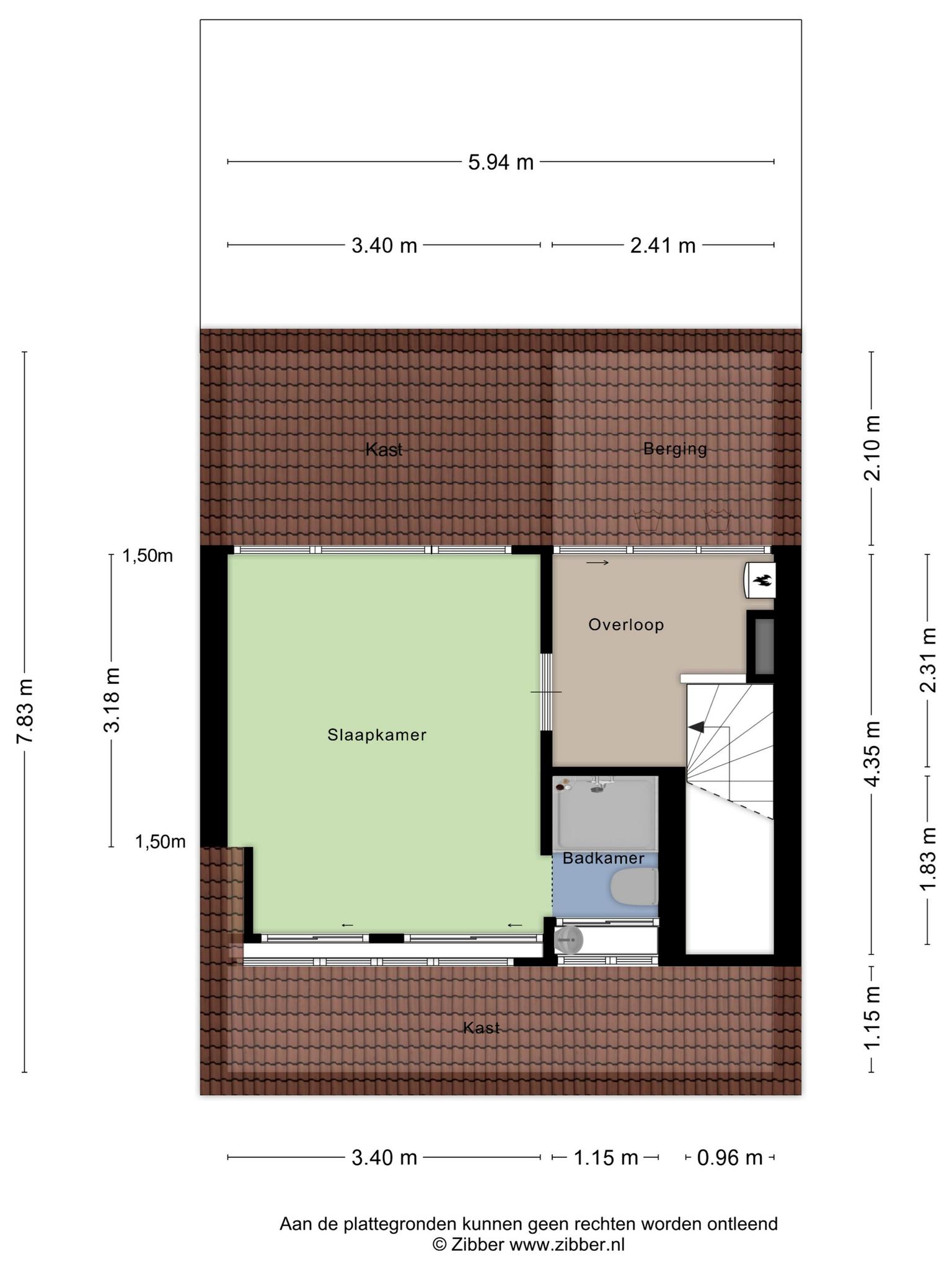
Op de eerste verdieping vind je drie fijne slaapkamers. De badkamer is voorzien van een ligbad en douche. Verder is er ook nog een nette wastafel aanwezig en een tweede toilet. Via een vaste trap kom je op zolder, waar je nog een verrassend ruime vierde slaapkamer vindt met een tweede badkamer. De badkamer is voorzien van een douche, toilet en een wastafel. Ook is er genoeg plek om spullen op te bergen en zijn wasmachines handig weggewerkt door middel van knieschotten.

Buitenleven & Opbergen
Zin in zon? Vanuit de woonkamer stap je zo onder de overkapping de tuin in – heerlijk op het zuiden! Een fijne plek om te relaxen, barbecueën of gewoon lekker te genieten van de rust en privacy.

OMSTREKEN & VOORZIENINGEN
Het Europakwartier ligt nabij het recreatieterrein ‘de Nedereindseplas’ waar je heerlijk kunt wandelen, fietsen, vissen en zonnen. Openbaar vervoer, zoals de tram naar Utrecht CS en de bus zijn op enkele minuten afstand te bereiken. Winkelcentrum de Clinckhoeff en zwembad de Hooge Waerd liggen op loopafstand. Op de fiets ben je binnen enkele minuten in de historische binnenstad van IJsselstein met gezellige winkeltjes, restaurants, koffie- en wijnbars, theater en bioscoop. En ook de cultuur en uitgaansgelegenheden zijn in ruime mate vertegenwoordigd. Rond de Kerstdagen wordt jaarlijks de grootste Kerstboom van Nederland feestelijk ontstoken. Ook biedt de stad veel sport- en recreatiemogelijkheden. Voor wie zijn horizon wil verbreden, ligt het gezellige en bruisende Utrecht letterlijk om de hoek. Vlakbij scholen en de uitvalswegen A2/A12. En dat is nu precies de kracht van IJsselstein: je woont hier rustig – met een dorps karakter – en daarbij profiteer je dagelijks van alles wat wonen in het hart van Nederland te bieden heeft.

HOOGTEPUNTEN & BIJZONDERHEDEN
– Energielabel C
– 5 zonnepanelen
– Ruime overkapping
– Oplevering in overleg
– Rustige woonomgeving;
– Voorzieningen op korte afstand gelegen;
– Kindvriendelijke woonomgeving;

PLANNEN, BEZICHTIGEN, WONEN & …GENIETEN
1. PLANNEN: We nodigen je graag uit om het geheel met eigen ogen te komen bekijken, plan direct een bezichtiging in! TIP: Wist je ook dat je een bezichtiging kan plannen of vraag kan stellen via onze Whatsapp? Stuur ons gerust een appje op 030-6884455.
2. BEZICHTIGEN: Onze enthousiaste makelaars leiden je graag rond door dit woonhuis.
3. WONEN: Wil je kijken wat je hypotheekmogelijkheden zijn om deze woning te kunnen kopen? Maak dan een afspraak met ons hypotheekteam en bekijk of wonen op deze plek mogelijk is!

De informatie op deze website en brochures is uitsluitend bedoeld als algemene informatie. Er kunnen geen rechten aan de informatie op deze website worden ontleend. Hoewel Reinerie Garantiemakelaars zorgvuldigheid in acht neemt bij het samenstellen en onderhouden van deze informatie en daarbij gebruik maakt van bronnen die betrouwbaar geacht worden, kunnen wij niet instaan voor de juistheid, volledigheid en actualiteit van de geboden informatie. Reinerie Garantiemakelaars garandeert niet dat de informatie foutloos is. Reinerie Garantiemakelaars wijst iedere aansprakelijkheid ten aanzien van de juistheid, volledigheid, actualiteit van de geboden informatie en het (ongestoord) gebruik van deze website uitdrukkelijk van de hand.

  • 118 m2
  • 124 m2
  • 4

Kenmerken Noorwegenlaan 27

Overdracht

Vraagprijs€ 445.000,- k.k.
AanvaardingIn overleg

Oppervlaktes en inhoud

Perceel oppervlakte124 m2
Woonoppervlakte118 m2
Inhoud435 m3

Bouw

SoortEengezinswoning
BouwvormBestaande bouw
Bouwjaar1969
Dak typeZadeldak
IsolatievormenDakisolatie, Muurisolatie, Dubbelglas, HR glas
EnergielabelC

Indeling

Aantal verdiepingen3
Aantal kamers5
Aantal slaapkamers4
Aantal badkamers2

Maandlasten

Ligging Noorwegenlaan 27

Voorzieningen

Centraal gelegen informatie over de buurt

Aantal inwoners

In de gemeente

34.208

Leeftijd

in percentages van totaal

Huishoudsamenstelling

in percentages van totaal

38%

20% NL

31%

20% NL

32%

20% NL

Vergelijkbaar woningaanbod