€ 325.000,- k.k.
Ben je op zoek naar een leuk TWEE-KAMER APPARTEMENT op een schitterende en centrale locatie pal naast het Stadshart van Amstelveen? Dan is dit jouw nieuwe [t]huis!
Welkom aan de Meander 259.
Laat ons de geschreven rondleiding starten;
WONEN, KOKEN & SLAPEN
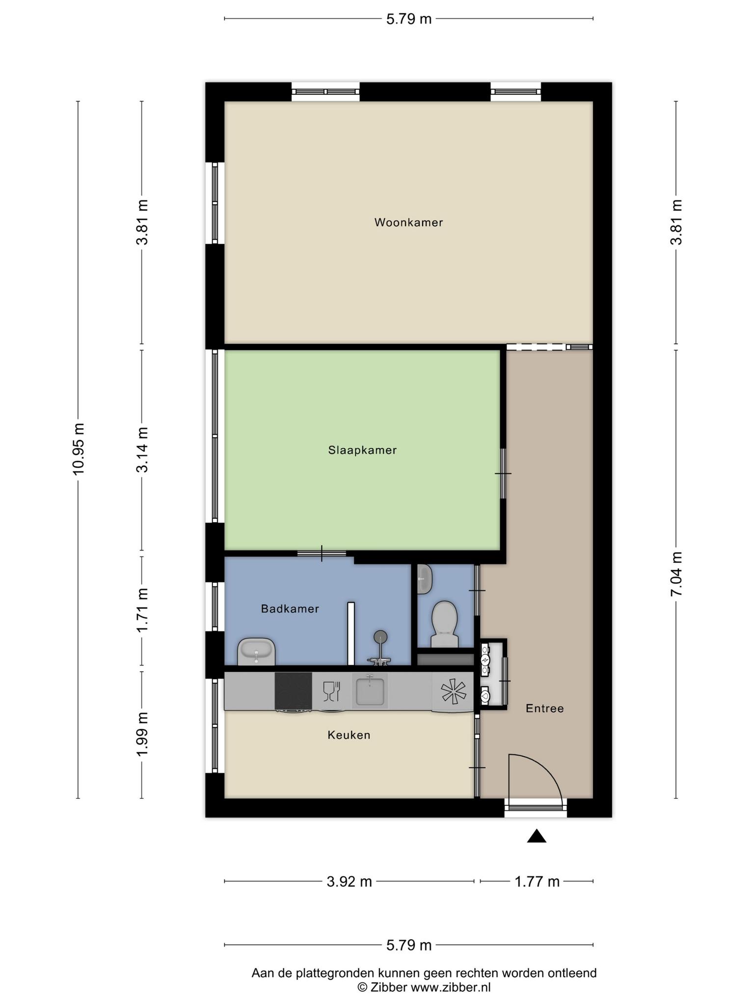
Via de afgesloten entree met intercom bereikt je via het trappenhuis de derde verdieping. De ruime entree/hal biedt toegang tot alle vertrekken. De meterkast, separaat toilet met fontein en bergkast bevinden zich ook in de hal. De gesloten keuken is praktische en licht. De keuken beschikt onder andere een geïntegreerde 4-pitskookplaat en een afzuigkap. Vanuit de slaapkamer bereikt je de badkamer met wasmachine aansluiting. Aan het einde van de hal bereik je de woonkamer.
De berging bevindt zich in de onderbouw.
OMSTREKEN & VOORZIENINGEN
Het appartement heeft een zeer centrale ligging op steenworp afstand van Stadshart Amstelveen. Hier vind je een grote diversiteit aan winkels, gezellige horecagelegenheden, de stadsschouwburg, Cobramuseum, openbare bibliotheek en recreatiemogelijkheden zoals het Amsterdamse Bos en natuurgebied “De Poel”. Zeer goed bereikbaar met het openbaar vervoer (busstation en sneltram naar Amsterdam) en de auto (A2, A4 en A9).
HOOGTEPUNTEN & BIJZONDERHEDEN
^ Centrale ligging nabij het Stadshart van Amstelveen;
^ Leuk twee-kamer appartement;
* In de koopovereenkomst zullen aanvullende artikelen worden opgenomen inzake het bouwjaar;
* De verkoper heeft het appartement zelf nooit bewoond, dit zal in de koopovereenkomst worden opgenomen;
* De maandelijkse VvE-servicebijdrage bedraagt € 119,04
* De stookkosten worden via de VvE verrekend, voorschot bedraagt € 150,00 per maand;
* Oplevering kan snel.
TIP! Wist je ook dat je een bezichtiging kan plannen of vraag kan stellen via onze Whatsapp? Stuur ons gerust een appje op 030-6884455.
Wil je kijken wat je hypotheekmogelijkheden zijn of wil je graag hulp in de zoektocht naar jouw nieuwe [t]huis? Maak dan een afspraak met ons team!
De informatie op deze website en brochures is uitsluitend bedoeld als algemene informatie. Er kunnen geen rechten aan de informatie op deze website worden ontleend. Hoewel Reinerie Garantiemakelaars zorgvuldigheid in acht neemt bij het samenstellen en onderhouden van deze informatie en daarbij gebruik maakt van bronnen die betrouwbaar geacht worden, kunnen wij niet instaan voor de juistheid, volledigheid en actualiteit van de geboden informatie. Reinerie Garantiemakelaars garandeert niet dat de informatie foutloos is. Reinerie Garantiemakelaars wijst iedere aansprakelijkheid ten aanzien van de juistheid, volledigheid, actualiteit van de geboden informatie en het (ongestoord) gebruik van deze website uitdrukkelijk van de hand.
- 63 m2
- 1
Kenmerken Meander 259
Overdracht
| Vraagprijs | € 325.000,- k.k. |
|---|---|
| Aanvaarding | In overleg |
Oppervlaktes en inhoud
| Woonoppervlakte | 63 m2 |
|---|---|
| Inhoud | 209 m3 |
Bouw
| Soort | Bovenwoning |
|---|---|
| Bouwvorm | Bestaande bouw |
| Bouwjaar | 1961 |
| Dak type | Plat dak |
| Isolatievormen | Dubbelglas |
| Energielabel | E |
Indeling
| Aantal verdiepingen | 1 |
|---|---|
| Aantal kamers | 2 |
| Aantal slaapkamers | 1 |
| Aantal badkamers | 1 |
Maandlasten
Ligging Meander 259
Voorzieningen
- Brede School Rembrandt 298 m Mr. P.J.M. Aalberselaan 2 AMSTELVEEN
- Protestantse Theologische Universiteit 4 km De Boelelaan 1105 AMSTERDAM
- ROC van Amsterdam 2 km Maalderij 37 AMSTELVEEN
- Gerrit Rietveld Academie 4 km Fred. Roeskestraat 96 AMSTERDAM
- Vrije Universiteit Amsterdam 4 km De Boelelaan 1105 AMSTERDAM
Centraal gelegen informatie over de buurt
Aantal inwoners
In de gemeente
89.294