€ 425.000,- k.k.
Ben jij op zoek naar tussenwoning gelegen in de rustige buurt “De Hoven en De Boomgaard”? Dan is dit jouw nieuwe [t]huis!
Welkom bij jouw nieuwe [t]huis aan de Floridalaan 5!
In het gezellige stadje IJsselstein aan de Floridalaan 5 treft u deze gezellige tussenwoning. Dit mooie familiehuis, , biedt 101 m² aan woonoppervlakte, een ruime woon- en eetkamer, 3 slaapkamers en een heerlijke achtertuin op het noordoosten.
Met de bouwjaar van 1998 en energieklasse A is dit huis klaar voor een nieuwe eigenaar die op zoek is naar een woning op fietsafstand van de binnenstad van IJsselstein.
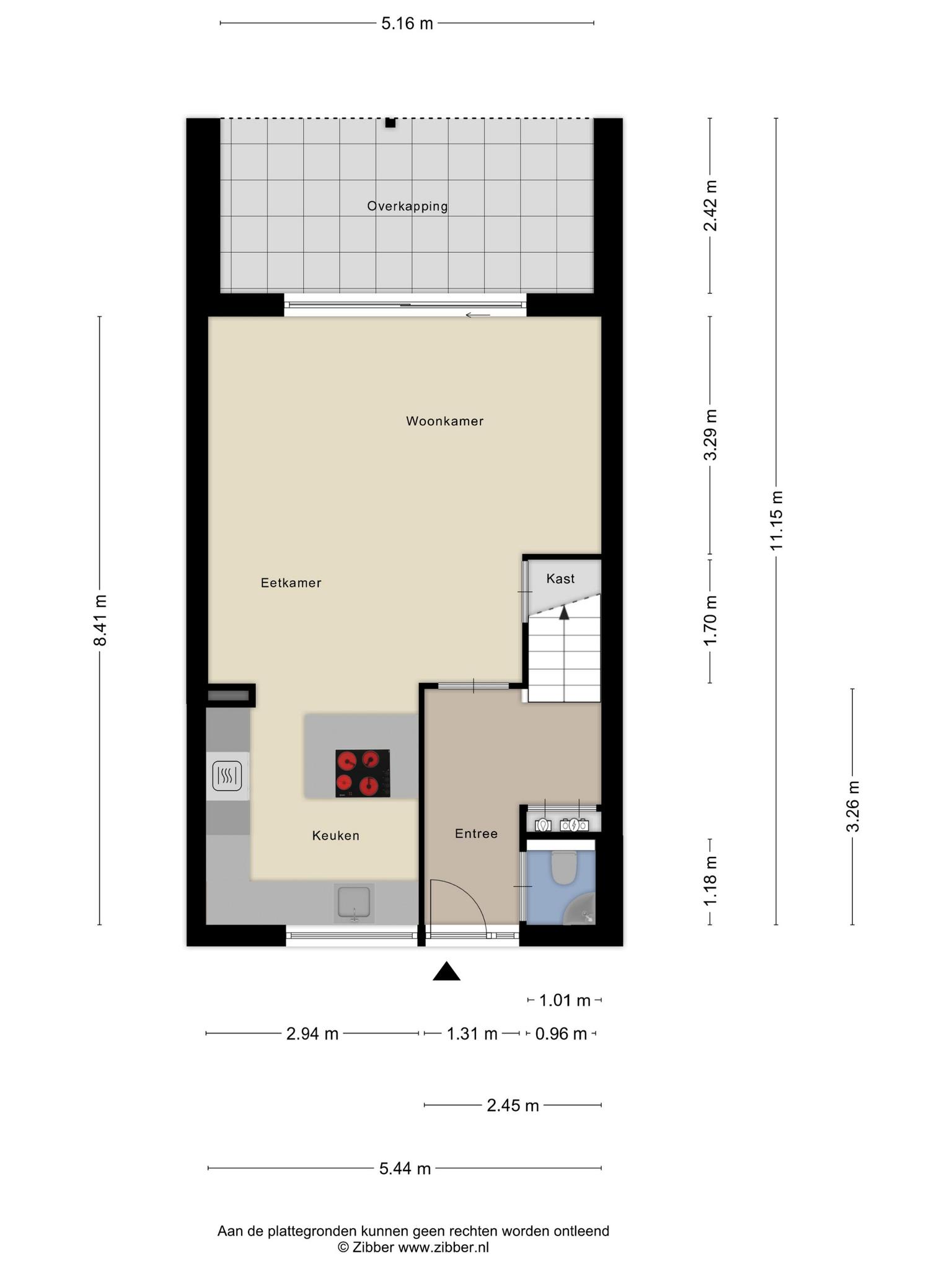
WONEN & KOKEN
Op de begane grond treffen we een heerlijk ruime lichte woonkamer met schuifpui naar de tuin. Een open keuken met kookeiland voorzien van alle benodigde apparatuur. Ook heeft de keuken een Quooker.
SLAPEN & BADEN
Op de eerste verdieping bevinden zich een ruime slaapkamer en een comfortabele badkamer. De badkamer is 5 m² groot en voorzien van een toilet, wastafel en inloopdouche.
Wat heerlijk is op deze eerste verdieping is het royale dakterras. Dit dakterras kan ook uitgebouwd worden om meer slaapkamers te creëren.
Op de tweede verdieping zijn er twee slaapkamers, perfect voor de kinderen plus extra bergruimte, met wasmachine droger aansluiting.
BUITENLEVEN & OPBERGEN
In de tuin kan je heerlijk in het zonnetje zitten maar ook gebruik maken van de terrasoverkapping. Op de begane grond is een berging met electra voor al uw spullen.
De ligging van de woning is ideaal; gelegen in een rustige straat, in een kindvriendelijke buurt en omringd door alle benodigde voorzieningen.
Ook parkeren is geen probleem, er is voldoende openbare parkeergelegenheid beschikbaar.
BIJZONDERHEDEN:
– Energieklasse A
– 3 slaapkamers
– Schuur met elektra
– CV-ketel & zonneboiler
HOOGTEPUNTEN:
* Gelegen in een rustige straat en buurt;
* Op fietsafstand van de gezellige binnenstad van IJsselstein;
* Fijne terrasoverkapping;
* Mogelijkheid tot uitbouwen van dakterras van de eerste verdieping voor het creëren van meerdere slaapkamers;
Ben je op zoek naar een fijne tussenwoning in een fijne en rustige buurt, dan is Floridalaan 5 in IJsselstein zeker het bekijken waard. Neem snel contact op en plan een bezichtiging in. Wij staan je graag te woord en beantwoorden al je vragen. En wie weet, mag jij jezelf binnenkort de trotse eigenaar van deze fijne tussenwoning noemen!
PLANNEN, BEZICHTIGEN, WONEN & …GENIETEN
1. PLANNEN: We nodigen je graag uit om het geheel met eigen ogen te komen bekijken, plan direct een bezichtiging in! TIP: Wist je ook dat je een bezichtiging kan plannen of vraag kan stellen via onze Whatsapp? Stuur ons gerust een appje op 030-6884455.
2. BEZICHTIGEN: Onze enthousiaste makelaars leiden je graag rond door dit woonhuis.
3. WONEN: Wil je kijken wat je hypotheekmogelijkheden zijn om deze woning te kunnen kopen? Maak dan een afspraak met ons hypotheekteam en bekijk of wonen op deze plek mogelijk is!
De informatie op deze website en brochures is uitsluitend bedoeld als algemene informatie. Er kunnen geen rechten aan de informatie op deze website worden ontleend. Hoewel Reinerie Garantiemakelaars zorgvuldigheid in acht neemt bij het samenstellen en onderhouden van deze informatie en daarbij gebruik maakt van bronnen die betrouwbaar geacht worden, kunnen wij niet instaan voor de juistheid, volledigheid en actualiteit van de geboden informatie. Reinerie Garantiemakelaars garandeert niet dat de informatie foutloos is. Reinerie Garantiemakelaars wijst iedere aansprakelijkheid ten aanzien van de juistheid, volledigheid, actualiteit van de geboden informatie en het (ongestoord) gebruik van deze website uitdrukkelijk van de hand.
- 101 m2
- 113 m2
- 3
Kenmerken Floridalaan 5
Overdracht
| Vraagprijs | € 425.000,- k.k. |
|---|---|
| Aanvaarding | In overleg |
Oppervlaktes en inhoud
| Perceel oppervlakte | 113 m2 |
|---|---|
| Woonoppervlakte | 101 m2 |
| Inhoud | 341 m3 |
Bouw
| Soort | Eengezinswoning |
|---|---|
| Bouwvorm | Bestaande bouw |
| Bouwjaar | 1998 |
| Dak type | Plat dak |
| Isolatievormen | Dubbelglas, Volledig geïsoleerd, HR glas |
| Energielabel | A |
Indeling
| Aantal verdiepingen | 4 |
|---|---|
| Aantal kamers | 4 |
| Aantal slaapkamers | 3 |
| Aantal badkamers | 1 |
Maandlasten
Ligging Floridalaan 5
Voorzieningen
- Basisschool De Torenuil 328 m Sint Petersburglaan 29 IJSSELSTEIN UT
- Hogeschool voor de Kunsten Utrecht 11 km Nieuwekade 1 UTRECHT
- ROC Midden Nederland 5 km Dasseweide 3 NIEUWEGEIN
- Hogeschool voor de Kunsten Utrecht 11 km Nieuwekade 1 UTRECHT
- Universiteit voor Humanistiek 11 km Kromme Nieuwegracht 29 UTRECHT
Centraal gelegen informatie over de buurt
Aantal inwoners
In de gemeente
34.208