€ 615.000,- k.k.
Wil jij wonen in een royale en ruim opgezette TUSSENWONING met inpandige garage in de geliefde wijk ‘Achterveld’? Dan is dit jouw nieuwe [t]huis!
Ben jij al nieuwsgierig? Laat ons ons gauw meer vertellen, 1, 2, 3: Welkom aan de Weegbree 123.
Deze goed onderhouden woning is onder meer geschikt voor grote gezinnen die op zoek zijn naar net dat beetje extra meer ruimte! Het woonhuis kenmerkt zich door de zonnige achtertuin aan het water, vijf slaapkamers, inpandige garage, twee balkons en het riante dakterras! Wij zijn enorm enthousiast en nemen je graag mee tijdens onze geschreven rondleiding;
WONEN & KOKEN
We betreden de woning via de entree, ontvangsthal met toegang naar de inpandige garage, meterkast, trapopgang, toiletruimte en het woongedeelte. De huiskamer is door de uitbouw zeer ruim te noemen, welke over de hele breedte een glazen pui heeft, zodat je een lichte woonkamer krijgt met een mooi uitzicht op de tuin. De woonkamer is voorzien van een gezellige open haard met gasblok en het geheel is afgewerkt met een tegelvloer mét comfortabele vloerverwarming! Aan de voorzijde van de woning is een complete keuken, die is uitgerust met een gaskookplaat, afzuigschouw, vaatwasser, combi-magnetron en koelkast en twee vriezers. Er is tevens veel werk- & bergruimte en het was- en kookgedeelte zijn van elkaar gescheiden.
SLAPEN & BADEN
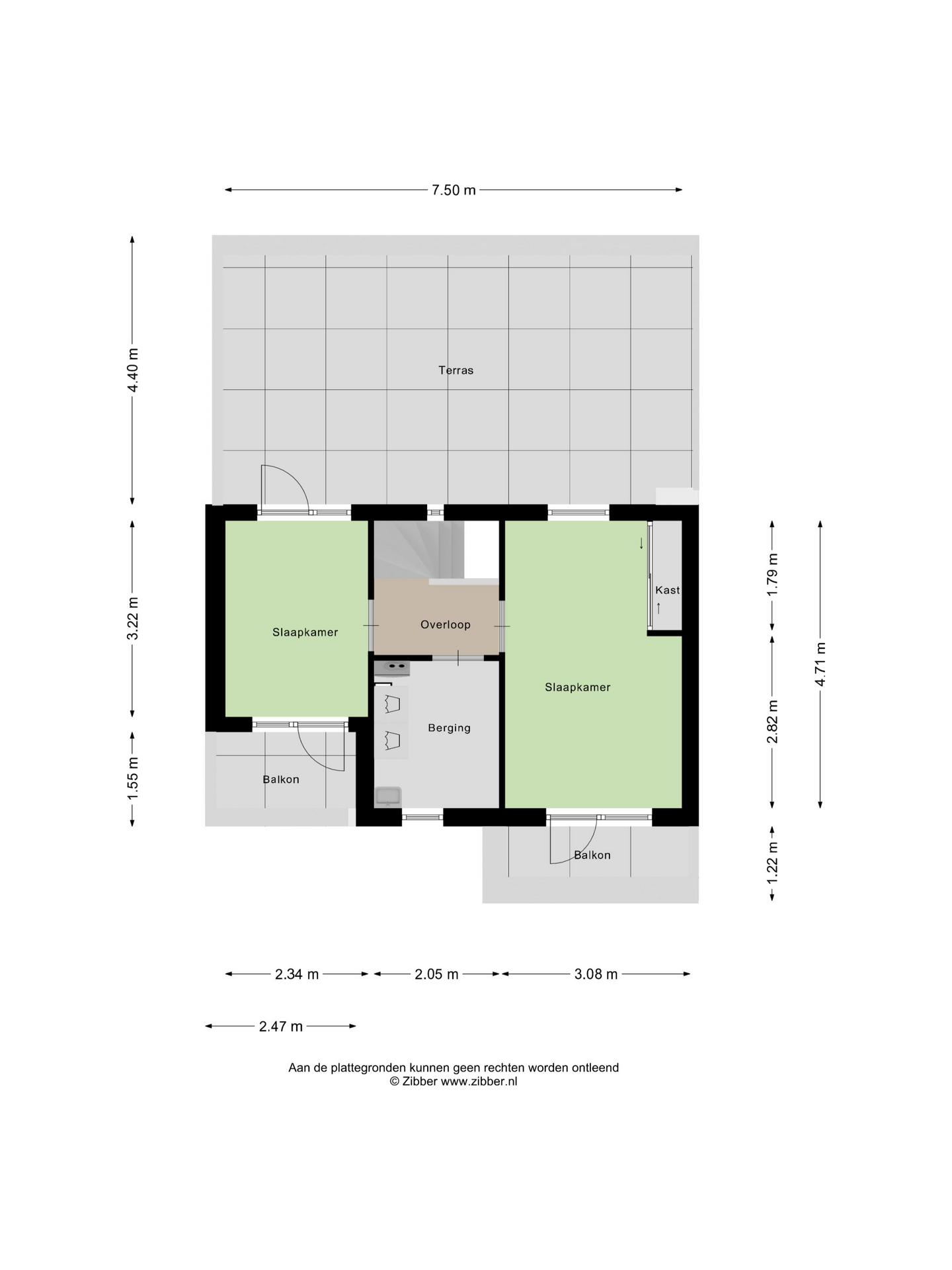
Door naar de eerste etage, hier vinden we via de overloop drie slaapkamers en de nette badkamer. De masterbedroom is over de gehele breedte van het huis. De badkamer uit 2022 beschikt over een dubbele wastafel met badkamermeubelen, een inloop(regen)douche en tweede toilet. Op de bovenste woonlaag zijn de twee laatste slaapkamers, bereikbaar via de overloop. Eén slaapkamer geeft toegang tot het riante dakterras op het zuidoosten en beide slaapkamers zijn voorzien van een eigen balkon aan de straatzijde. Tot slot is er op deze verdieping een berging/wasruimte met opstelplaats voor de wasmachine, droger en c.v. installatie.
BUITENLEVEN & OPBERGEN
Ideaal is de inpandige garage, welke zowel via binnenuit als buitenaf bereikbaar is. Achter de woning is een extra berging aangebouwd, ideaal voor bijvoorbeeld de opslag van je tuingereedschap en tuinmeubelen. Door de schuifpui naar de tuin, sta je op het fraai aangelegde terras. Er is veel groen en een voordeel van deze tuin is dat er geen directe achterburen zijn, veel privacy dus!
VOORZIENINGEN & OMSTREKEN
In de straat is er voldoende parkeergelegenheid. In de nabije omgeving zijn diverse speelweides en het ‘park’ met de kinderboerderij. Daarnaast alle benodigde voorzieningen zoals basisscholen, kinderdagverblijven, sportverenigingen en het gelijknamige winkelcentrum Achterveld. Aan de rand van IJsselstein kan je via diverse wandel-en fietspaden naar bijvoorbeeld jachthaven Marnemoende, richting Montfoort voor de pannenkoekenboerderij en zo zijn er nog veel meer vrije tijdsbestedingen op korte afstand. Daarnaast is er met de sneltram en bus op loopafstand een goede verbinding met Nieuwegein, Utrecht Centraal en Utrecht Science Park. Uitvalswegen A12 en A2 zijn makkelijk te bereiken. Op enkele minuten fietsafstand ligt het historische stadscentrum van IJsselstein. In het centrum vind je een gevarieerd aanbod van winkels, restaurants, koffie- en wijnbars, theater en bioscoop. En ook de cultuur en uitgaansgelegenheden zijn in ruime mate vertegenwoordigd. Ook biedt de stad veel sport- en recreatiemogelijkheden. Zo bevinden zich de sportvelden en sporthal IJsseloever op steenworp afstand. En dat is nu precies de kracht van IJsselstein: je woont hier rustig – met een dorps karakter – en daarbij profiteer je dagelijks van alles wat wonen in het hart van Nederland te bieden heeft.
HOOGTEPUNTEN & BIJZONDERHEDEN
^ Ruim opgezette en goed onderhouden woning;
^ Vijf slaapkamers;
^ Zonnige achtertuin met veel privacy, riant dakterras en twee balkons;
^ Nette badkamer uit 2022;
* Energielabel A;
* In de koopovereenkomst zullen aanvullende artikelen worden opgenomen inzake het bouwjaar van de woning;
* Oplevering mogelijk per februari 2025.
TIP: Wist je ook dat je een bezichtiging kan plannen of vraag kan stellen via onze Whatsapp? Stuur ons gerust een appje op 030-6884455.
Wil je kijken wat je hypotheekmogelijkheden zijn om deze woning te kunnen kopen? Maak dan een afspraak met ons hypotheekteam en bekijk of wonen op deze plek mogelijk is!
De informatie op deze website en brochures is uitsluitend bedoeld als algemene informatie. Er kunnen geen rechten aan de informatie op deze website worden ontleend. Hoewel Reinerie Garantiemakelaars zorgvuldigheid in acht neemt bij het samenstellen en onderhouden van deze informatie en daarbij gebruik maakt van bronnen die betrouwbaar geacht worden, kunnen wij niet instaan voor de juistheid, volledigheid en actualiteit van de geboden informatie. Reinerie Garantiemakelaars garandeert niet dat de informatie foutloos is. Reinerie Garantiemakelaars wijst iedere aansprakelijkheid ten aanzien van de juistheid, volledigheid, actualiteit van de geboden informatie en het (ongestoord) gebruik van deze website uitdrukkelijk van de hand.
- 174 m2
- 182 m2
- 5
Kenmerken Weegbree 123
Overdracht
| Vraagprijs | € 615.000,- k.k. |
|---|---|
| Aanvaarding | In overleg |
Oppervlaktes en inhoud
| Perceel oppervlakte | 182 m2 |
|---|---|
| Woonoppervlakte | 174 m2 |
| Inhoud | 697 m3 |
Bouw
| Soort | Eengezinswoning |
|---|---|
| Bouwvorm | Bestaande bouw |
| Bouwjaar | 1990 |
| Dak type | Plat dak |
| Isolatievormen | Dubbelglas, Volledig geïsoleerd, HR glas |
| Energielabel | A |
Indeling
| Aantal verdiepingen | 3 |
|---|---|
| Aantal kamers | 6 |
| Aantal slaapkamers | 5 |
| Aantal badkamers | 1 |
Maandlasten
Ligging Weegbree 123
Voorzieningen
- Rooms Katholieke Basisschool de Opstap 350 m Heemradenlaan 3032 IJSSELSTEIN UT
- Hogeschool voor de Kunsten Utrecht 9 km Nieuwekade 1 UTRECHT
- ROC Midden Nederland 4 km Dasseweide 3 NIEUWEGEIN
- Hogeschool voor de Kunsten Utrecht 9 km Nieuwekade 1 UTRECHT
- Universiteit voor Humanistiek 10 km Kromme Nieuwegracht 29 UTRECHT
Centraal gelegen informatie over de buurt
Aantal inwoners
In de gemeente
34.208