Ga naar inhoud

Te koop: appartement Van Weerden Poelmanlaan 68 3527 KP Utrecht

Reinerie Garantiemakelaars IJsselstein
Neem contact met mij op

Verkocht

€ 385.000,- k.k.

Ben jij op zoek naar een hoekappartement in Utrecht? Dan is dit jouw nieuwe [t]huis!

Welkom bij jouw nieuwe [t]huis aan de Van Weerden Poelmanlaan 68!

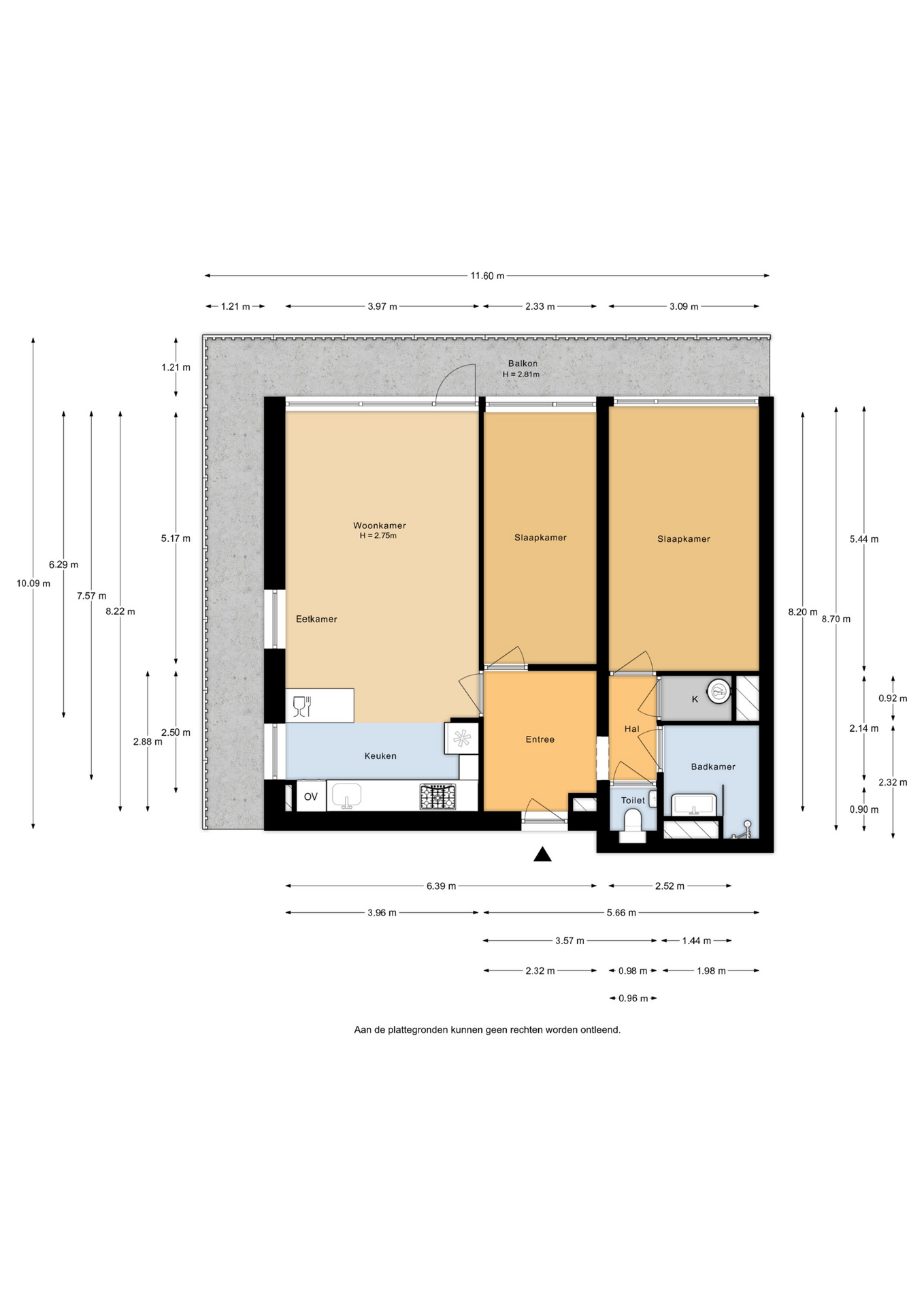
Gezellig wonen in Utrecht. Dat kan in dit energiezuinige klasse C appartement, gebouwd in 1968, gelegen aan de Van Weerden Poelmanlaan in de levendige Zuidwest wijk van Utrecht. Met een woonoppervlakte van 81 m2, 2 slaapkamers en een ruime moderne woonkamer, is dit appartement perfect voor starters, alleenstaanden, senioren en stellen. Jouw nieuwe woonadres komt compleet met een overdekte berging, mechanische ventilatie, TV-kabel- en liftfaciliteiten en is permanent beschikbaar voor bewoning. Een buitenruimte met een omvang van 25 m2 hoort er ook bij. De vraagpwrijs van deze woning is € 385.000, – k.k.

Wij zijn erg enthousiast en nemen je graag mee door dit [t]huis!

WONEN, KOKEN EN SLAPEN
De zesde verdieping bestaat uit een ruime en moderne woonkamer, een gebouwgebonden buitenruimte en twee slaapkamers. De lichte woonkamer is het perfecte middelpunt van het appartement. Je zult ook de open keuken waarderen, met ramen aan de zijkant. Ook is er een badkamer uitgerust met een douche en een wastafelmeubel en een separaat toilet.

Er is ook een berging op begane grond, ideaal voor opslag.

STRAATBEELD & OMSTREKEN
Jouw nieuwe thuis bevindt zich in een residentiële buurt die gemakkelijk bereikbaar is voor ouderen en mensen met een beperking. Betaald parkeren en parkeervergunningen zijn beschikbaar rondom het gebouw.Het appartement ligt in een zeer goed bereikbare omgeving. Vlakbij de snelwegen A2 en A12, is het uitstekend verbinding zonder door de stad te rijden. Voor wie van sport en ontspanning houdt, is Zwembad Den Hommel in de nabije omgeving, en de fitnesszaal is letterlijk tegenover het appartement.

Winkelcentrum is dichtbij, waardoor je gemakkelijk toegang hebt tot diverse winkels, supermarkten en horecagelegenheden. Daarnaast is de tramhalte direct tegenover het appartement gelegen. Centraal Station Utrecht is slechts twee haltes met de tram, of slechts vijf minuten fietsen.

Voor wat rust en natuur kun je binnen tien minuten lopen naar Park Transwijk, een rustige plek om te wandelen of te relaxen. De combinatie van centrale ligging, bereikbaarheid en ontspanningsmogelijkheden maakt deze locatie erg aantrekkelijk.

BIJZONDERHEDEN
– Warmwatervoorziening door middel van een eigen elektrische boiler, en stadsverwarming.
– Totaal aantal slaapkamers: 2
– Energieklasse C, dus het appartement is energiezuinig.
– Licht appartement door de raampartijen
– Balkon

Dit is een kans die je niet wilt missen. Neem vandaag nog contact op om een bezichtiging te plannen!

PLANNEN, BEZICHTIGEN, WONEN & …GENIETEN
1. PLANNEN: We nodigen je graag uit om het geheel met eigen ogen te komen bekijken, plan direct een bezichtiging in! TIP: Wist je ook dat je een bezichtiging kan plannen of vraag kan stellen via onze Whatsapp? Stuur ons gerust een appje op 030-6884455.
2. BEZICHTIGEN: Onze enthousiaste makelaars leiden je graag rond door dit woonhuis.
3. WONEN: Wil je kijken wat je hypotheekmogelijkheden zijn om deze woning te kunnen kopen? Maak dan een afspraak met ons hypotheekteam en bekijk of wonen op deze plek mogelijk is!

De informatie op deze website en brochures is uitsluitend bedoeld als algemene informatie. Er kunnen geen rechten aan de informatie op deze website worden ontleend. Hoewel Reinerie Garantiemakelaars zorgvuldigheid in acht neemt bij het samenstellen en onderhouden van deze informatie en daarbij gebruik maakt van bronnen die betrouwbaar geacht worden, kunnen wij niet instaan voor de juistheid, volledigheid en actualiteit van de geboden informatie. Reinerie Garantiemakelaars garandeert niet dat de informatie foutloos is. Reinerie Garantiemakelaars wijst iedere aansprakelijkheid ten aanzien van de juistheid, volledigheid, actualiteit van de geboden informatie en het (ongestoord) gebruik van deze website uitdrukkelijk van de hand.

  • 81 m2
  • 2

Kenmerken Van Weerden Poelmanlaan 68

Overdracht

Vraagprijs€ 385.000,- k.k.
AanvaardingIn overleg

Oppervlaktes en inhoud

Woonoppervlakte81 m2
Inhoud280 m3

Bouw

SoortPortiekflat
BouwvormBestaande bouw
Bouwjaar1968
Dak typePlat dak
IsolatievormenDubbelglas
EnergielabelC

Indeling

Aantal verdiepingen1
Aantal kamers3
Aantal slaapkamers2
Aantal badkamers1

Maandlasten

Ligging Van Weerden Poelmanlaan 68

Voorzieningen

Centraal gelegen informatie over de buurt

Aantal inwoners

In de gemeente

343.038

Leeftijd

in percentages van totaal

Huishoudsamenstelling

in percentages van totaal

58%

20% NL

25%

20% NL

17%

20% NL

Vergelijkbaar woningaanbod