€ 450.000,- k.k.
Ben jij op zoek naar een goed onderhouden DRIVE-IN TUSSENWONING met een eigen parkeerplaats en GARAGE? Dan is dit jouw nieuwe [t]huis!
Welkom bij jouw nieuwe [t]huis aan de Belgiestraat 29.
Deze leuke en ruime eengezinswoning is gelegen aan de Belgiestraat in de prettige woonwijk “Europakwartier”. De woning is 2014 voorzien van nieuwe ramen (HR). De absolute blikvanger is de royale woon-/eetkamer met open keuken op de eerste verdieping en de grote raampartijen aan de achterzijde van de woning. Wij denken dat jij hier de komende jaren met veel plezier zult wonen! We nemen je graag even mee tijdens onze geschreven rondleiding;
WONEN & KOKEN
Na een drukke dag hoef jij niet op zoek naar een parkeerplek, je parkeert je auto namelijk op je eigen oprit.
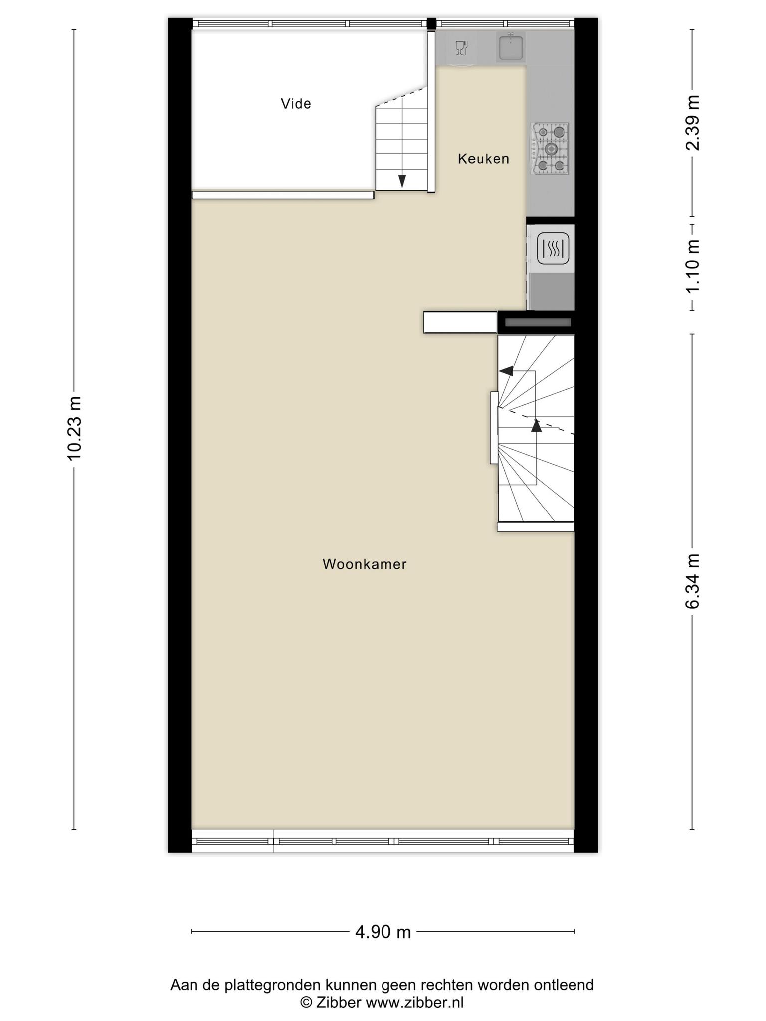
Op de begane grond betreed je de woning via de entree. Vanuit de hal heb je toegang tot een grote inpandige garage, welke ook via buiten bereikbaar is. Wanneer je door de garage loopt kom je uit bij een fijne werkplek met veel lichtinval. Door middel van een open trap kom je in de woonkamer op de eerste verdieping. Deze woonlaag is ook bereikbaar middels de trap uit de ontvangsthal. Ruime en lichte woonkamer door de grote raampartijen. Nette open keuken, welke beschikt over een gaskookplaat, combi-magnetron, vaatwasser (2011), koelkast en vriezer.
SLAPEN & BADEN
Door middel van de trap vanuit de woonkamer betreed je de tweede etage. Via de overloop krijg je toegang tot twee ruime slaapkamers. De ouderslaapkamer is zeer ruim te noemen en voorzien van kastenwand. Er is eventueel een mogelijkheid om een derde slaapkamer te realiseren door de ouderslaapkamer te splitsen. Ook bevindt zich op deze verdieping de badkamer, uitgerust met een inloop(regen)douche, wastafelmeubel, (handdoek)radiator en tweede toilet. Er is een aparte stook-/bergruimte met de opstelplaats voor de cv-ketel.
BUITENLEVEN
De woning heeft een voor-en achtertuin. De voortuin is betegeld met tegels en klinkers, biedt parkeerruimte voor één auto en heeft een plantvak. De achtertuin ligt op het zuidwesten en is sfeervol ingericht met terrastegels. Achterin de tuin staat er nog een houten berging voor bijvoorbeeld het opbergen van je tuinkussens en tuingereedschap.
OMSTREKEN & VOORZIENINGEN
In de nabije omgeving zijn alle benodigde voorzieningen op korte afstand te vinden. Hierbij kan je denken aan winkelcentrum “De Clinckhoeff” en het zwembad “De Hooghe Waerd”, maar ook de 700 jaar oude historische binnenstad van IJsselstein, met stadsgracht, stadhuis, tal van fraaie huizen, kerkgebouwen, waag en een nog werkende korenmolen, is vlakbij. In het bruisende centrum vind je gezellige winkeltjes, restaurants, koffie- en wijnbars, theater en bioscoop. Cultuur- en uitgaansgelegenheden zijn in ruime mate vertegenwoordigd, net als sportfaciliteiten. De bekende uitvalswegen A2, A12 en A27 zijn in enkele rijminuten bereikbaar. Wanneer je afhankelijk bent van het openbaar vervoer, zit je ook goed in IJsselstein. De sneltram naar Utrecht CS / SciencePark Utrecht en de bus zijn op steenworp afstand te bereiken. Bij ‘de Nedereindseplas’ kun je heerlijk wandelen, fietsen, vissen en zonnen. Voor wie zijn horizon wil verbreden, ligt het gezellige en bruisende Utrecht letterlijk om de hoek. Het Antonius Ziekenhuis in Nieuwegein is in nog geen 7 minuten met de sneltram te bereiken. En dat is nu precies de kracht van IJsselstein: je woont hier rustig – met een dorps karakter – en daarbij profiteer je dagelijks van alles wat wonen in het hart van Nederland te bieden heeft.
ISOLEREN & ENERGIE BESPAREN
Dit woonhuis is in 2014 voorzien van nieuwe HR-beglazing en radiatoren. In 2014 zijn de gevelplaten geïsoleerd (hardschuimplaten) plus dakisolatie aangebracht (8cm pir isolatie). De energieclassificatie komt uit op een B-label.
PLANNEN, BEZICHTIGEN, WONEN & …GENIETEN
1. PLANNEN: We nodigen je graag uit om het geheel met eigen ogen te komen bekijken, plan direct een bezichtiging in! TIP: Wist je ook dat je een bezichtiging kan plannen of vraag kan stellen via onze Whatsapp? Stuur ons gerust een appje op 030-6884455.
2. BEZICHTIGEN: Onze enthousiaste makelaars leiden je graag rond door deze goed onderhouden woning.
3. WONEN: Wil je kijken wat je hypotheekmogelijkheden zijn om deze woning te kunnen kopen? Maak dan een afspraak met ons hypotheekteam en bekijk of wonen op deze plek mogelijk is!
HOOGTEPUNTEN & BIJZONDERHEDEN
^ Ruime en lichte woonkamer met keuken;
^ Twee ruime slaapkamers, realiseren derde slaapkamer behoort tot de mogelijkheden;
* CV-ketel 2008 Remeha;
* Dak in 2014 vervangen;
* De garage en (kantoor)ruimte op de begane grond biedt de mogelijkheid voor het creëren van een werkplek of praktijk aan huis;
* In de koopovereenkomst zullen aanvullende artikelen worden opgenomen inzake het bouwjaar van de woning;
* Oplevering in overleg.
De informatie op deze website en brochures is uitsluitend bedoeld als algemene informatie. Er kunnen geen rechten aan de informatie op deze website worden ontleend. Hoewel Reinerie Garantiemakelaars zorgvuldigheid in acht neemt bij het samenstellen en onderhouden van deze informatie en daarbij gebruik maakt van bronnen die betrouwbaar geacht worden, kunnen wij niet instaan voor de juistheid, volledigheid en actualiteit van de geboden informatie. Reinerie Garantiemakelaars garandeert niet dat de informatie foutloos is. Reinerie Garantiemakelaars wijst iedere aansprakelijkheid ten aanzien van de juistheid, volledigheid, actualiteit van de geboden informatie en het (ongestoord) gebruik van deze website uitdrukkelijk van de hand.
- 120 m2
- 110 m2
- 2
Kenmerken Belgiestraat 29
Overdracht
| Vraagprijs | € 450.000,- k.k. |
|---|---|
| Aanvaarding | In overleg |
Oppervlaktes en inhoud
| Perceel oppervlakte | 110 m2 |
|---|---|
| Woonoppervlakte | 120 m2 |
| Inhoud | 506 m3 |
Bouw
| Soort | Eengezinswoning |
|---|---|
| Bouwvorm | Bestaande bouw |
| Bouwjaar | 1971 |
| Dak type | Plat dak |
| Isolatievormen | Dakisolatie, Muurisolatie, HR glas |
| Energielabel | B |
Indeling
| Aantal verdiepingen | 3 |
|---|---|
| Aantal kamers | 4 |
| Aantal slaapkamers | 2 |
| Aantal badkamers | 1 |
Maandlasten
Ligging Belgiestraat 29
Voorzieningen
- Paulusschool voor Katholiek Basisonderwijs 126 m Duitslandstraat 11 IJSSELSTEIN UT
- Hogeschool voor de Kunsten Utrecht 9 km Nieuwekade 1 UTRECHT
- ROC Midden Nederland 3 km Dasseweide 3 NIEUWEGEIN
- Hogeschool voor de Kunsten Utrecht 9 km Nieuwekade 1 UTRECHT
- Universiteit voor Humanistiek 9 km Kromme Nieuwegracht 29 UTRECHT
Centraal gelegen informatie over de buurt
Aantal inwoners
In de gemeente
34.208
Leeftijd
in percentages van totaal
Huishoudsamenstelling
in percentages van totaal
38%
20% NL
31%
20% NL
32%
20% NL