€ 450.000,- k.k.
Wil jij wonen in een TWEE-ONDER-EEN-KAPWONING in Uitweg welke veel mogelijkheden biedt om jouw droom[t]huis te realiseren? Dan is dit jouw nieuwe huis!
Welkom aan de Sluisweg 7.
De woning beschikt onder andere over een drie slaapkamers, een badkamer op de begane grond en ruime garage. Wij zijn erg enthousiast en nemen je graag mee door deze woning:
WONEN & KOKEN
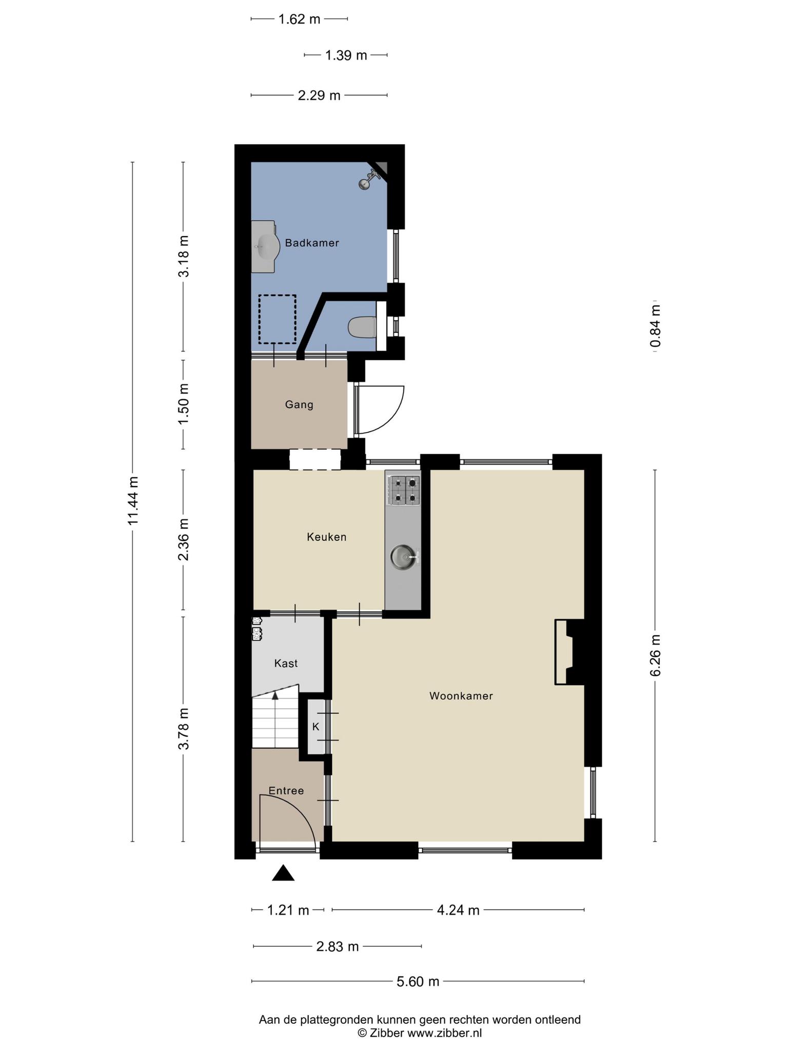
Entree, hal met trapopgang en toegang tot de woonkamer. Lichte doorzonwoonkamer met veel ramen en voorzien van open haard. Dichte keuken aan de achterzijde van het huis welke onder andere beschikt over een gaskookplaat en magnetron. De gang biedt doorgang naar de achtertuin en badkamer in de aanbouw. De gehele begane grond is voorzien van comfortabele vloerverwarming.
SLAPEN & BADEN
Nette en volledig betegelde badkamer met wastafelmeubel, radiator en inloopdouche. We nemen de trap naar de eerste verdieping, hier vinden we via de overloop drie goede slaapkamers.
BUITENLEVEN & OPBERGEN
Er is voldoende bergruimte in de bergvlieringen boven de aanbouw (badkamer) en boven de slaapkamers. Voor het stallen van je auto, tuingereedschap, fietsen en/of motoren is er een grote garage achterin de tuin. De garage beschikt tevens over een vliering en vloerverwarming op de begane grond.
OMSTREKEN & VOORZIENINGEN
Uitweg ligt tussen IJsselstein – Lopikerkapel en Lopik in. Je ervaart hier de rust, het landelijke leven, maar bent toch binnen 5 a 10 minuten autorijden op de snelweg A2, binnen 5 minuten autorijden en 15 minuten (veilig) fietsen in het stedelijke IJsselstein of op 15 minuten fietsafstand in het dorpse Lopik. Lopik heeft alle dagelijks benodigde voorzieningen die je nodig hebt. IJsselstein biedt tal van voorzieningen zoals openbaar vervoer, scholen en een historisch stadscentrum met tal van winkels, gezellige restaurantjes, terrasjes en uitgaansgelegenheden. Tevens ben je binnen 30 minuten rijden in het centrum van Utrecht en binnen 45 minuten rijden ben je in het centrum Rotterdam, een fijne prettige centrale locatie dus!
Mocht je een ‘buitenmens’ zijn en graag een fietstocht/wandeltocht maken, dan is het buitengebied van Lopik een fantastische gelegenheid. De rivier de Lek ligt letterlijk om de hoek. Je kunt hier heerlijk wandelen, fietsen of een tocht maken door het ‘Groene Hart’! Het natuurgebied van de Lek is met ‘warme temperaturen’ ook een uitstekend gebied om heerlijk te recreëren.
HOOGTEPUNTEN & BIJZONDERHEDEN
^ Veel mogelijkheden om je eigen droomhuis te realiseren;
^ Landelijke omgeving;
^ Parkeren op eigen terrein;
^ Drie slaapkamers op de verdieping;
* 3 jaar geleden zijn er 11 zonnepanelen geplaatst
* In de koopovereenkomst zullen aanvullende artikelen worden opgenomen inzake het bouwjaar van de woning;
* De verkopers hebben de woning zelf nooit bewoond als eigenaar, dit zal worden opgenomen in de koopovereenkomst;
* Energielabel G;
* Oplevering kan snel.
TIP! Wist je ook dat je een bezichtiging kan plannen of vraag kan stellen via onze Whatsapp? Stuur ons gerust een appje op 030-6884455.
Wil je kijken wat je hypotheekmogelijkheden zijn of wil je graag hulp in de zoektocht naar jouw nieuwe [t]huis? Maak dan een afspraak met ons team!
De informatie op deze website en brochures is uitsluitend bedoeld als algemene informatie. Er kunnen geen rechten aan de informatie op deze website worden ontleend. Hoewel Reinerie Garantiemakelaars zorgvuldigheid in acht neemt bij het samenstellen en onderhouden van deze informatie en daarbij gebruik maakt van bronnen die betrouwbaar geacht worden, kunnen wij niet instaan voor de juistheid, volledigheid en actualiteit van de geboden informatie. Reinerie Garantiemakelaars garandeert niet dat de informatie foutloos is. Reinerie Garantiemakelaars wijst iedere aansprakelijkheid ten aanzien van de juistheid, volledigheid, actualiteit van de geboden informatie en het (ongestoord) gebruik van deze website uitdrukkelijk van de hand.
- 76 m2
- 350 m2
- 3
Kenmerken Sluisweg 7
Overdracht
| Vraagprijs | € 450.000,- k.k. |
|---|---|
| Aanvaarding | In overleg |
Oppervlaktes en inhoud
| Perceel oppervlakte | 350 m2 |
|---|---|
| Woonoppervlakte | 76 m2 |
| Inhoud | 300 m3 |
Bouw
| Soort | Eengezinswoning |
|---|---|
| Bouwvorm | Bestaande bouw |
| Bouwjaar | 1948 |
| Dak type | Zadeldak |
| Isolatievormen | Gedeeltelijk dubbelglas |
| Energielabel | G |
Indeling
| Aantal verdiepingen | 3 |
|---|---|
| Aantal kamers | 4 |
| Aantal slaapkamers | 3 |
| Aantal badkamers | 1 |
Maandlasten
Ligging Sluisweg 7
Voorzieningen
- Prot Chr Sch vr BSO Immanuel 2 km Kapelsepad 20A LOPIKERKAPEL
- Hogeschool voor de Kunsten Utrecht 14 km Nieuwekade 1 UTRECHT
- ROC Midden Nederland 8 km Dasseweide 3 NIEUWEGEIN
- Hogeschool voor de Kunsten Utrecht 14 km Nieuwekade 1 UTRECHT
- Universiteit voor Humanistiek 14 km Kromme Nieuwegracht 29 UTRECHT
Centraal gelegen informatie over de buurt
Aantal inwoners
In de gemeente
14.208
Leeftijd
in percentages van totaal
Huishoudsamenstelling
in percentages van totaal
21%
20% NL
35%
20% NL
44%
20% NL