Ga naar inhoud

Te koop: woonhuis Buitenstede 24 3431 XB Nieuwegein

Reinerie Garantiemakelaars IJsselstein
Neem contact met mij op

Aangekocht

Prijs op aanvraag

Dit [t]huis gelegen aan Buitenstede 24 is met succes door een van onze opdrachtgevers aangekocht. Reinerie Garantiemakelaars heeft hierbij opgetreden als aankoopmakelaar.

Wil jij ook hulp in de zoektocht naar een nieuwe woning! Wij kunnen je helpen, neem contact met ons op voor een vrijblijvende afspraak.

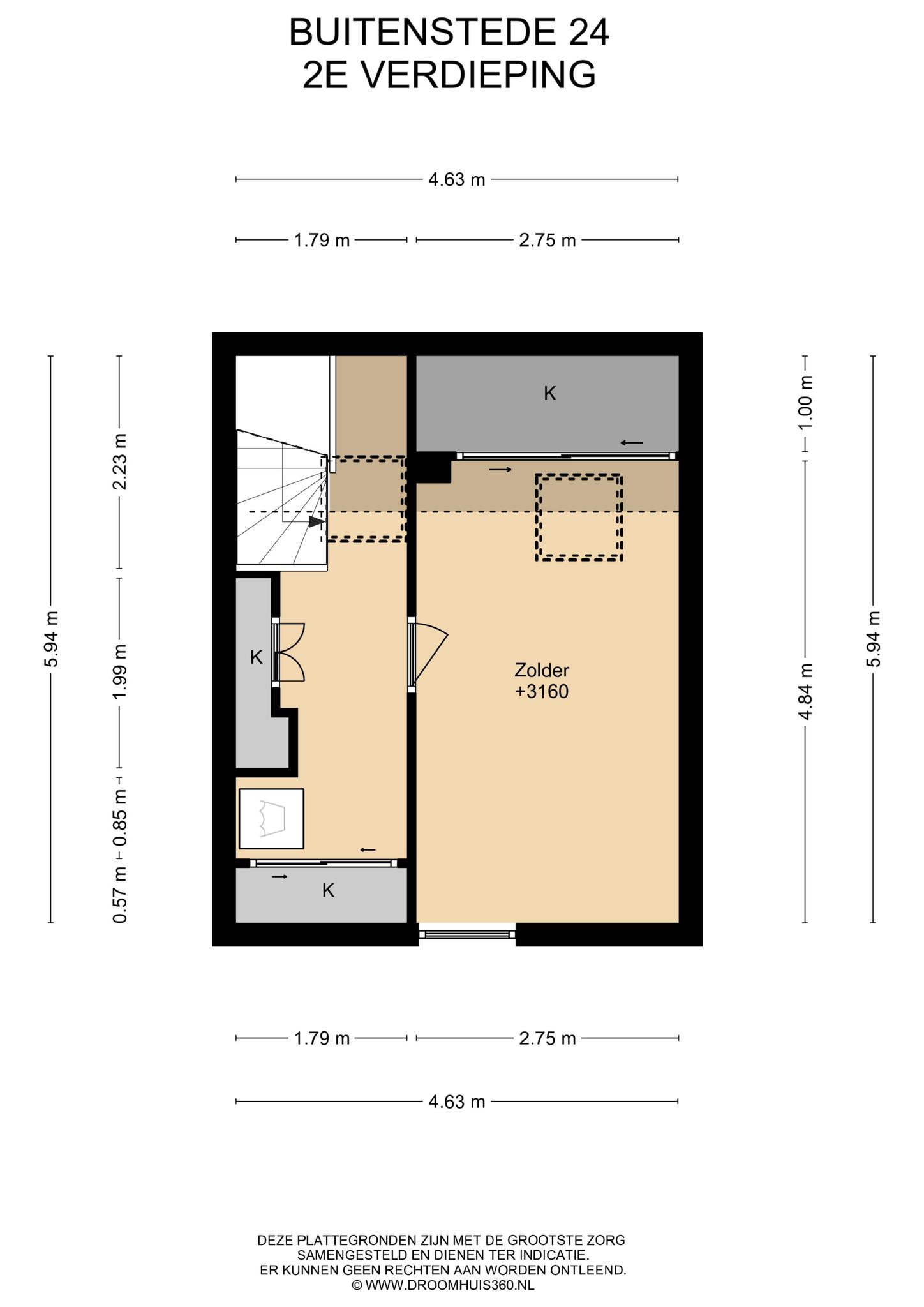
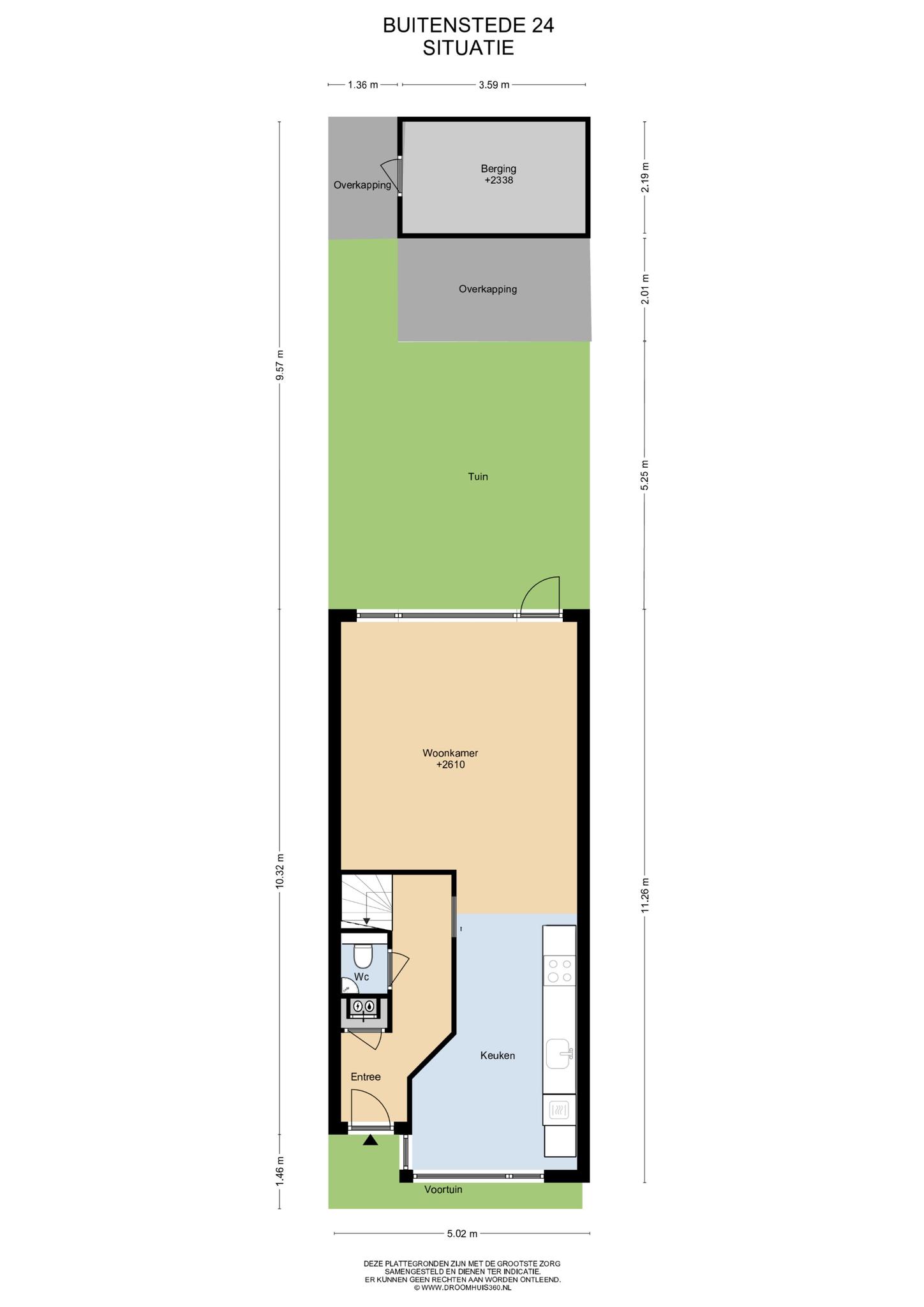
  • 109 m2
  • 106 m2
  • 3

Kenmerken Buitenstede 24

Overdracht

Woning prijsPrijs op aanvraag

Oppervlaktes en inhoud

Perceel oppervlakte106 m2
Woonoppervlakte109 m2
Inhoud273 m3

Bouw

SoortEengezinswoning
BouwvormBestaande bouw
Bouwjaar1981
Dak typeZadeldak
IsolatievormenDakisolatie, Dubbelglas
EnergielabelA

Indeling

Aantal verdiepingen3
Aantal kamers4
Aantal slaapkamers3
Aantal badkamers1

Maandlasten

Ligging Buitenstede 24

Voorzieningen

Centraal gelegen informatie over de buurt

Aantal inwoners

In de gemeente

61.868

Leeftijd

in percentages van totaal

Huishoudsamenstelling

in percentages van totaal

58%

20% NL

25%

20% NL

16%

20% NL

Vergelijkbaar woningaanbod